Company Profile
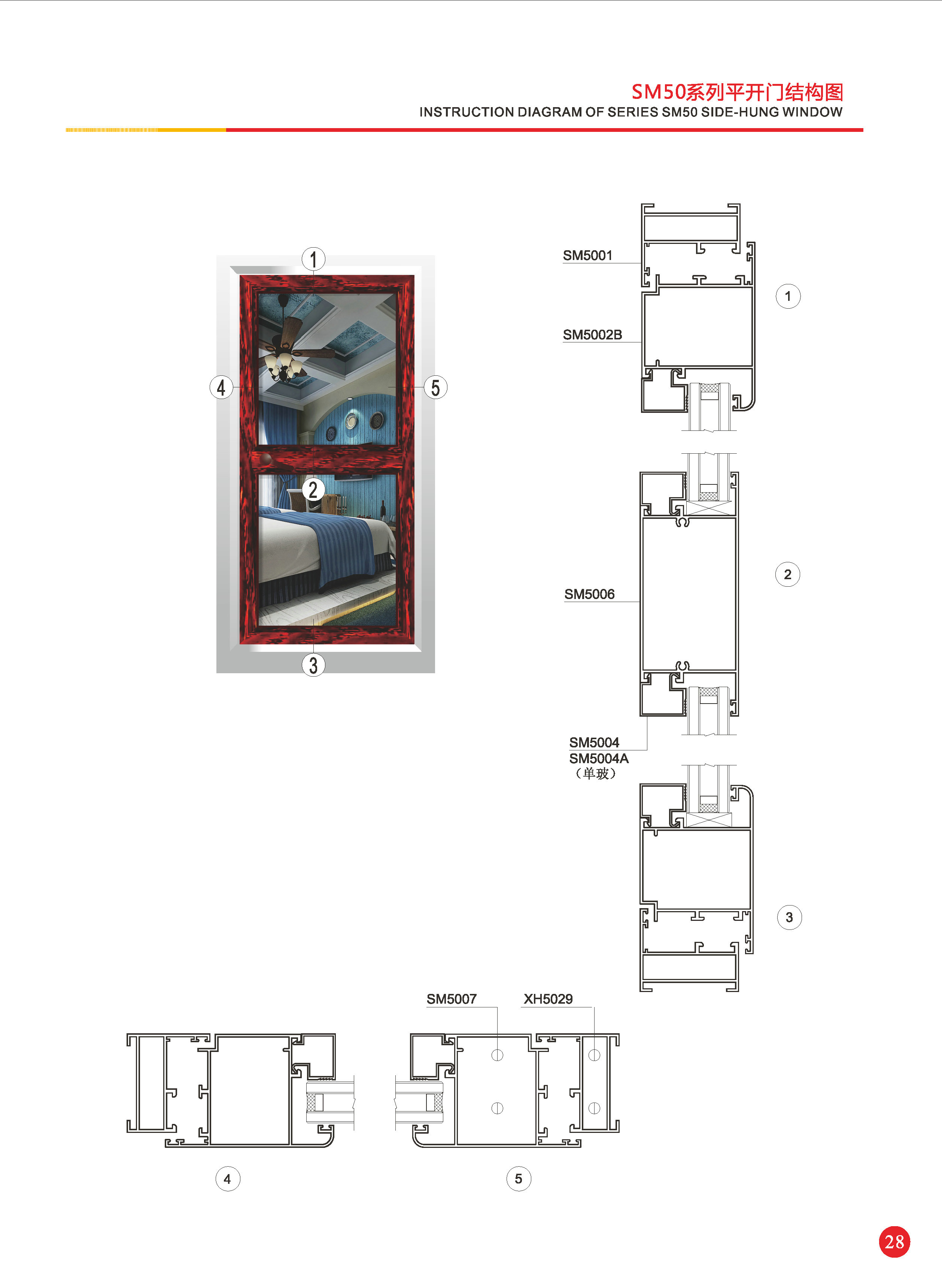
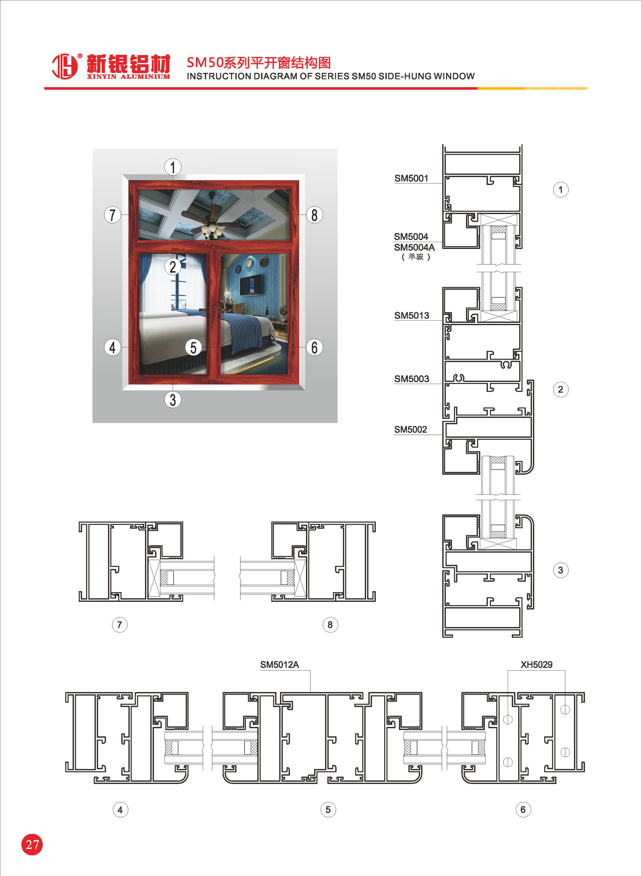
平开窗(门)系列