Company Profile
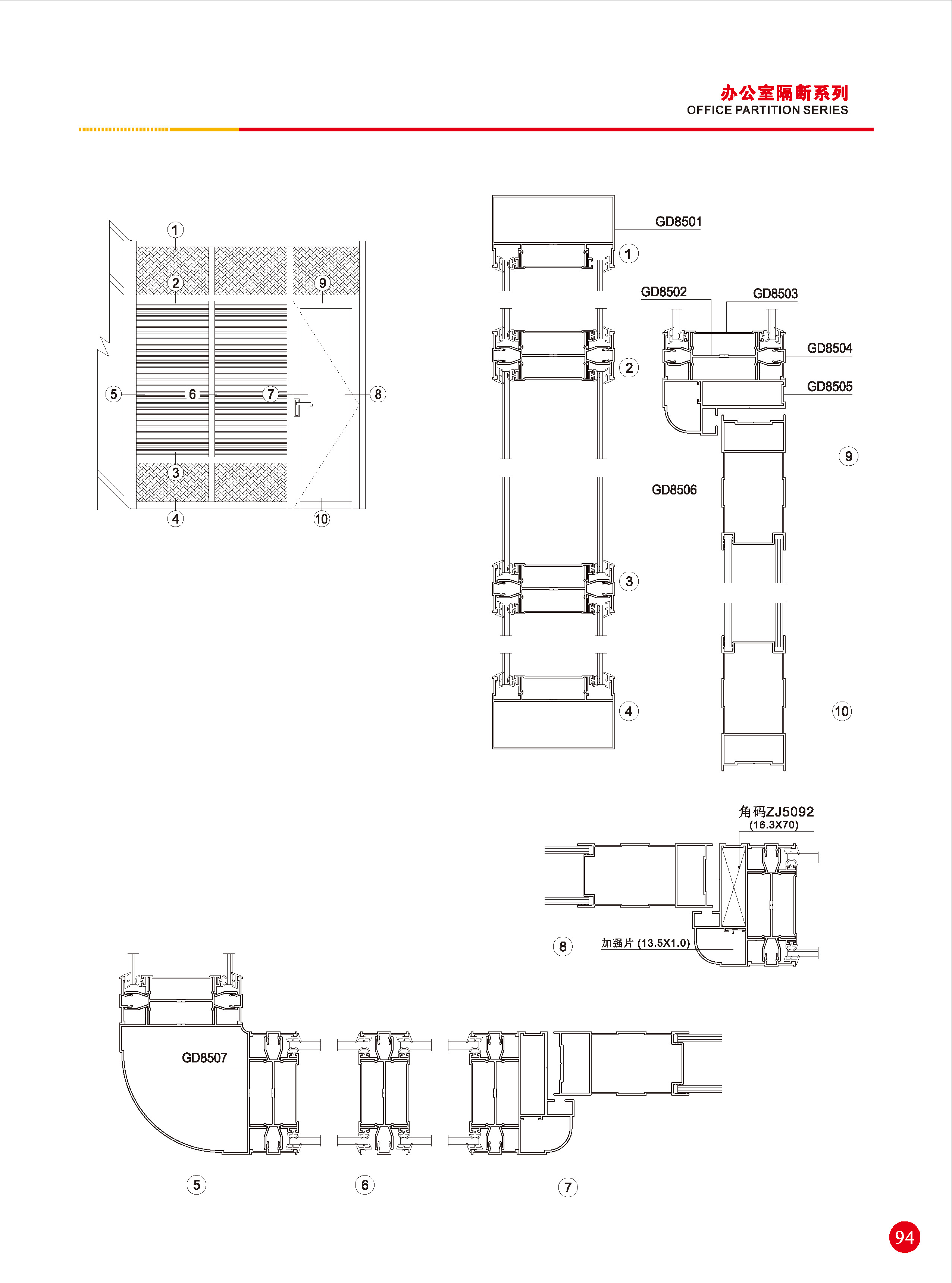
隔断系列铝型材