Open Menu
首页
企业简介
返回上一级
企业简介
组织架构
企业荣誉
厂区实景
产品中心
返回上一级
新品推荐
门窗系列
幕墙、隔热系列
移门家具装饰系列
工程案例
技术研发
返回上一级
高新设备
工艺流程
表面处理
质量管理
研发创新
资讯中心
返回上一级
企业动态
企业视频
行业动态
客户服务
返回上一级
服务承诺
加盟条件
销售网络
客户服务
简体中文
首页
走进耀银山
企业简介
组织架构
企业荣誉
厂区实景
产品中心
新品推荐
门窗系列
幕墙、隔热系列
移门家具装饰系列
工程案例
技术研发
高新设备
工艺流程
表面处理
质量管理
研发创新
资讯中心
企业动态
企业视频
行业动态
客户服务
服务承诺
加盟条件
销售网络
联系我们
en
搜索
产品中心
新品推荐
门窗系列
幕墙、隔热系列
移门家具装饰系列
Company Product
幕墙、隔热系列
玻璃幕墙铝型材
隔热穿胶铝型材
隔热管类铝型材
隔热门窗用角码
XHA160系列明框中空玻璃幕墙
让舒适生活进入千万家
了解更多
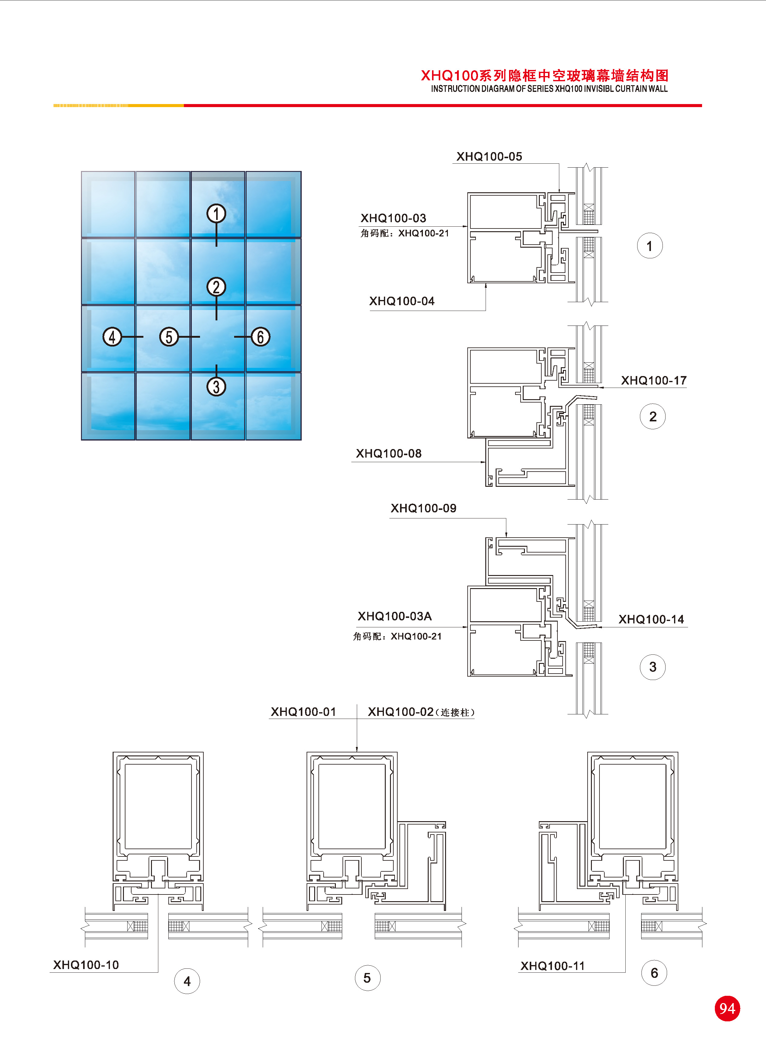
XHQ100隐框幕墙
让舒适生活进入千万家
了解更多
XHQ105、145、180系列隐框玻璃幕墙
让舒适生活进入千万家
了解更多
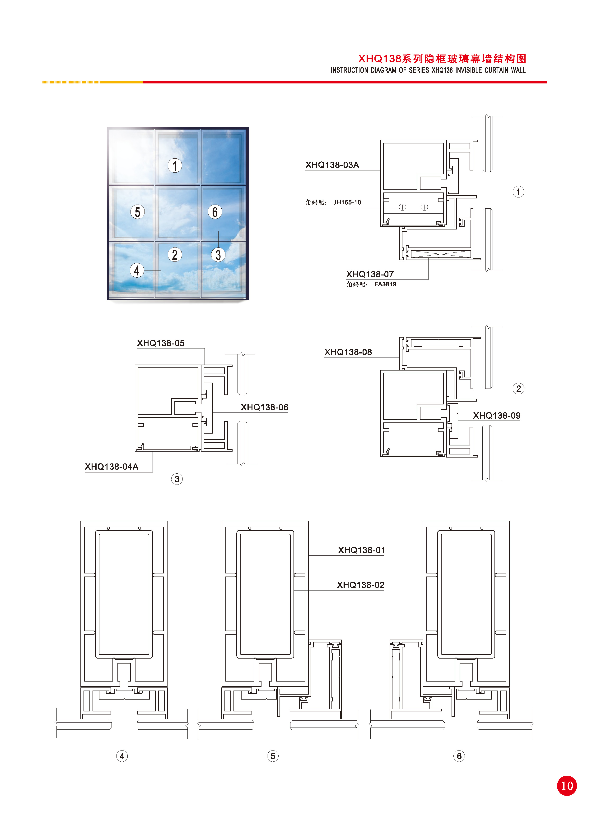
XHQ138系列隐框玻璃幕墙
让舒适生活进入千万家
了解更多
XHQ155系列明框、隐框玻璃幕墙
让舒适生活进入千万家
了解更多
XJB(A)系列明框幕墙
让舒适生活进入千万家
了解更多
上一页
1
2
3
4
5
6
7
8
9
10
11
12
13
下一页
1
广东耀银山铝业有限公司
电话:0757-88844666 88844388
传真:0757-88843366
邮箱:yaoyinshan@yys-alu.com
客服:8:00-12:00 13:30-17:30
招商加盟:请拨打0757-88844666
地址:广东省佛山市高明区更合镇白石工业开发区
联系方式
电话:0757-88844666 88844388
传真:0757-88843366
邮箱:yaoyinshan@yys-alu.com
广东耀银山铝业有限公司
客服:8:00-12:00 13:30-17:30
招商加盟:请拨打0757-88844666
地址:广东省佛山市高明区更合镇白石工业开发区